Historie
Pivovarská časová osa
Významná data
Chronologicky
Do 18. století
19. století
20. století
20. století
Četnická stanice
ZZN Třebíč
Po roce 1990
Osobnosti
Jan Antonín Staller
Novák & Jahn
Karel Havlíček (Borovský)
Anna Maria Kammel Edle von Hardegger
Karl Kammel von Hardegger
Karl Fridrich Kammel von Hardegger
Jan Jindřich Lucemburský
Zachariáš z Hradce
Majitelé Starého hradu
Historické využití
Pivovar
Ubytování
Četnická stanice
Zemědělský sklad
Historické fotografie
Historická zkoumání
Předprojektová příprava 2012
Pojmosloví
Tvrz
Kulturní památka
Pivovarské humno
Havarijní program
Fond Vysočiny
Budovy
Sladovnická věž
Foto věže 2023
Animace funkce hvozdu
Spuštění horního vendru
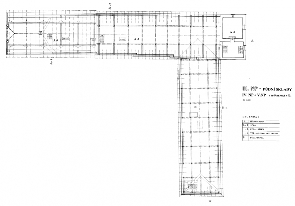
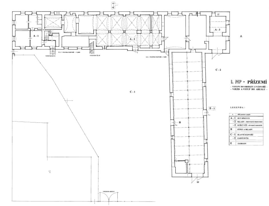
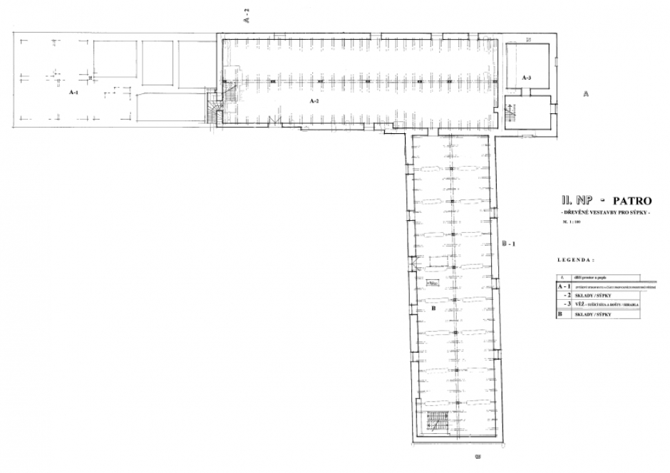
Trakty
A - Severní křídlo
A1 - Byt správce
A2 - Pivovarský trakt
A3 - Sušárenská věž
B - Východní křídlo
B - Sýpka
C - Nádvoří
C1 - Hlavní nádvoří
C2 - Nádvoří k potoku
D - Západní křídlo
D1 - Renesanční budova
D2 - Dvorní přístavek
D3 - Kolny
E - Zahrady
F - Sklepy
F - Pivovarské sklepy
Pohledy na areál
Výškové pohledy foto
Výškové pohledy video
Pohledy na areál z dálky
Letecký pohled ze severozápadu
Reálie
Pivovar Želetava
Klobouk pana Starého
Pivovarské listy
Pivní láhve
Elektrifikace pivovaru
Dopisní hlavičky
Uzávěr Jasta
Výstav piva 1880-1953
Čapí hnízdo
Čápi video duben 2020
Oprava čapího hnízda 2020
Snížení čapího hnízda
Čáp bílý (Ciconia ciconia)
Náhrobní kámen
Detaily na půdách
Želetavská taška
Císařská silnice
Klenby
Opravy
Práce 2012
Obnova střech 2012
Fotografie opravy střechy 2012
Fotografie obnovy zahrady 2012
Práce 2013
Práce 2013
Fotografie prací 2013
Usazování trámů - video
Fotografie prací 2014-2018
Fotografie prací 2014
Fotografie prací 2015
Fotografie prací 2016
Fotografie prací 2017
Fotografie prací 2018
Opravy 2012 - 2018
Obnova historické zahrady
Práce 2019
Oprava věže A3
Oprava boční zdi sklepa
Práce 2020
Oprava čapího hnízda
Opravy sklepa 2020 PDF
Práce 2021
Opravy sladovnické věže 2021
Práce 2022
Opravy 2022
Práce 2022 - pdf
Práce 2023
Den otevřených dveří 5.8.2023 - fotografie
Práce 2024
Práce 2024
Práce 2025
Oprava střechy 2025
Výměna střešní krytiny 2025
Areálové přípojky 2025
Média
Světem médií
Byl jednou jeden (ne)obyčejný pivovar
V Želetavě do dvou let zpřístupní dochovanou sladovnickou věž
Český rozhlas Sklepy
Třebíčský deník
Šlechta nocovala
Sklepy NPÚ
Snížení čapího hnízda
Co se děje ve Starém hradu?
Po deseti letech se k nám vrátili čápi
Karel Friedrich Kammel von Hardegger
Světem internetu
Kvasný Průmysl
Pivovary Info
Pivety.com
Městys Želetava
Komínová Databáze
Čapí hnízdo ČSO
Fotogalerie
Ke stažení
Nový web
Vyhledávání
Puzzle
Povánka Želetavský zpravodaj 720 let
Aktuálně
Komentované prohlídky 5.8.2023
Konference - Pivovary na druhou
Dárcovský transparentní účet
Jak pomoci I.
Jak pomoci II.
Poděkování
Brigády 2024
Kontakt
O nás
Poloha Starého hradu na mapě ČR
Internetové mapy
Google
Seznam
Spolek Zachraňme Starý hrad
Fotogalerie
Previous
Next
Podpora Starého hradu
Nejnovější články
Areálové přípojky 2025
17. únor 2026
Výměna střešní krytiny 2025
17. únor 2026
Práce 2024
23. září 2025
Historie
Pivovarská časová osa
Významná data
Chronologicky
Do 18. století
19. století
20. století
20. století
Četnická stanice
ZZN Třebíč
Po roce 1990
Osobnosti
Jan Antonín Staller
Novák & Jahn
Karel Havlíček (Borovský)
Anna Maria Kammel Edle von Hardegger
Karl Kammel von Hardegger
Karl Fridrich Kammel von Hardegger
Jan Jindřich Lucemburský
Zachariáš z Hradce
Majitelé Starého hradu
Historické využití
Pivovar
Ubytování
Četnická stanice
Zemědělský sklad
Historické fotografie
Historická zkoumání
Předprojektová příprava 2012
Pojmosloví
Tvrz
Kulturní památka
Pivovarské humno
Havarijní program
Fond Vysočiny
Budovy
Sladovnická věž
Foto věže 2023
Animace funkce hvozdu
Spuštění horního vendru
Trakty
A - Severní křídlo
A1 - Byt správce
A2 - Pivovarský trakt
A3 - Sušárenská věž
B - Východní křídlo
B - Sýpka
C - Nádvoří
C1 - Hlavní nádvoří
C2 - Nádvoří k potoku
D - Západní křídlo
D1 - Renesanční budova
D2 - Dvorní přístavek
D3 - Kolny
E - Zahrady
F - Sklepy
F - Pivovarské sklepy
Pohledy na areál
Výškové pohledy foto
Výškové pohledy video
Pohledy na areál z dálky
Letecký pohled ze severozápadu
Reálie
Pivovar Želetava
Klobouk pana Starého
Pivovarské listy
Pivní láhve
Elektrifikace pivovaru
Dopisní hlavičky
Uzávěr Jasta
Výstav piva 1880-1953
Čapí hnízdo
Čápi video duben 2020
Oprava čapího hnízda 2020
Snížení čapího hnízda
Čáp bílý (Ciconia ciconia)
Náhrobní kámen
Detaily na půdách
Želetavská taška
Císařská silnice
Klenby
Opravy
Práce 2012
Obnova střech 2012
Fotografie opravy střechy 2012
Fotografie obnovy zahrady 2012
Práce 2013
Práce 2013
Fotografie prací 2013
Usazování trámů - video
Fotografie prací 2014-2018
Fotografie prací 2014
Fotografie prací 2015
Fotografie prací 2016
Fotografie prací 2017
Fotografie prací 2018
Opravy 2012 - 2018
Obnova historické zahrady
Práce 2019
Oprava věže A3
Oprava boční zdi sklepa
Práce 2020
Oprava čapího hnízda
Opravy sklepa 2020 PDF
Práce 2021
Opravy sladovnické věže 2021
Práce 2022
Opravy 2022
Práce 2022 - pdf
Práce 2023
Den otevřených dveří 5.8.2023 - fotografie
Práce 2024
Práce 2024
Práce 2025
Oprava střechy 2025
Výměna střešní krytiny 2025
Areálové přípojky 2025
Média
Světem médií
Byl jednou jeden (ne)obyčejný pivovar
V Želetavě do dvou let zpřístupní dochovanou sladovnickou věž
Český rozhlas Sklepy
Třebíčský deník
Šlechta nocovala
Sklepy NPÚ
Snížení čapího hnízda
Co se děje ve Starém hradu?
Po deseti letech se k nám vrátili čápi
Karel Friedrich Kammel von Hardegger
Světem internetu
Kvasný Průmysl
Pivovary Info
Pivety.com
Městys Želetava
Komínová Databáze
Čapí hnízdo ČSO
Fotogalerie
Ke stažení
Nový web
Vyhledávání
Puzzle
Povánka Želetavský zpravodaj 720 let
Aktuálně
Komentované prohlídky 5.8.2023
Konference - Pivovary na druhou
Dárcovský transparentní účet
Jak pomoci I.
Jak pomoci II.
Poděkování
Brigády 2024
Kontakt
O nás
Poloha Starého hradu na mapě ČR
Internetové mapy
Google
Seznam
Spolek Zachraňme Starý hrad